- 垦业
- 房价35700元/㎡
- 楼盘介绍垦业小区建立于90年代中期,地处通州路海拉尔路路口,近地铁10号线海伦路站、地铁4号线临平路站、紧邻...查看更多 >
- 绿化率35%
- 楼盘地址虹口通州路415弄1-10号、通州路419弄
- 容积率2.20

垦业小区外景图

垦业小区外景图

垦业小区外景图

垦业小区外景图

垦业小区外景图

垦业小区外景图

垦业小区外景图

垦业小区外景图

垦业小区外景图

垦业小区户型图户型图 1室1厅1卫1厨

垦业小区户型图户型图 1室1卫1厨

垦业小区户型图户型图 2室2厅1卫1厨

垦业小区户型图户型图 2室1卫1厨

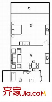
垦业小区户型图户型图 2室1厅1卫1厨

垦业小区户型图户型图 1室1厅1卫1厨

垦业小区户型图户型图 1室1厅1卫1厨

垦业小区户型图户型图 2室1厅1卫1厨

垦业小区户型图户型图 2室2厅1卫1厨
back